Modules réfectoires à La Réunion

Découvrez nos modulaires réfectoires à vendre à La Réunion

Des espaces repas modulaires prêts à l’emploi

Le Réfectoire Essentiel

Réfectoire 12 personnes – REF01

Un module de taille moyenne conçu pour accueillir un petit groupe autour d’un repas.

– Usage : réfectoire de chantier ou salle de pause
– Dimensions : 2,438 x 6,000 m
– Capacité : 12 personnes
– Équipements inclus : espace repas, installation électrique
– Options disponibles : climatisation, mobilier de restauration

Le Réfectoire Collectif

Réfectoire 18 personnes – REF02

Un espace pratique et modulable pour accueillir confortablement une équipe élargie.

– Usage : réfectoire collectif pour chantiers
– Dimensions : 2,438 x 12,000 m
– Capacité : 18 personnes
– Équipements inclus : espace repas, installation électrique
– Options disponibles : climatisation, mobilier, cuisine intégrée

Le Réfectoire Terrasse

Réfectoire 40 personnes avec terrasse – REF03

Un module spacieux conçu pour accueillir un grand groupe dans des conditions confortables.

– Usage : grande salle de restauration modulaire
– Dimensions : 4,876 x 12,000 m
– Capacité : 40 personnes
– Équipements inclus : espace repas, ventilation, installation électrique
– Options disponibles : climatisation, mobilier de cantine

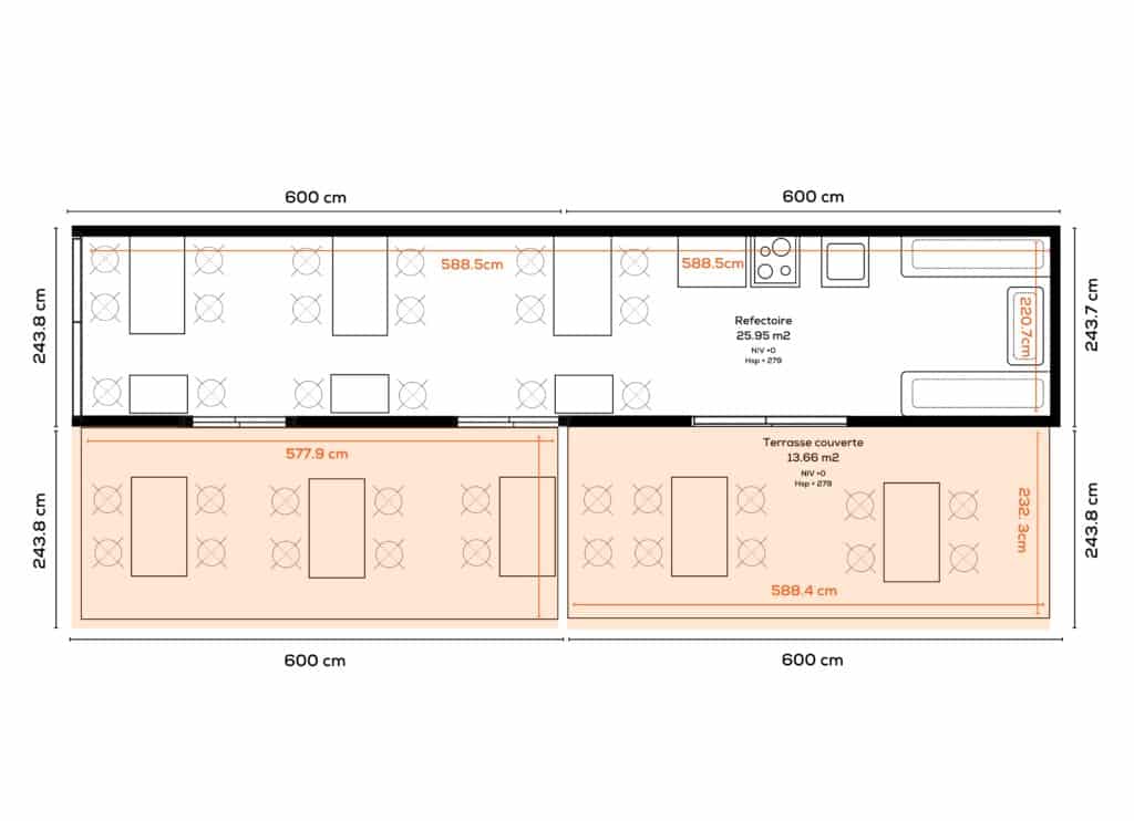
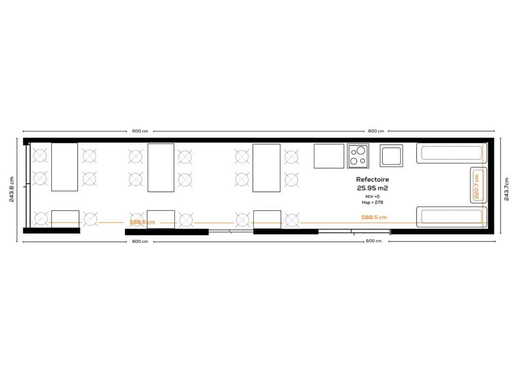
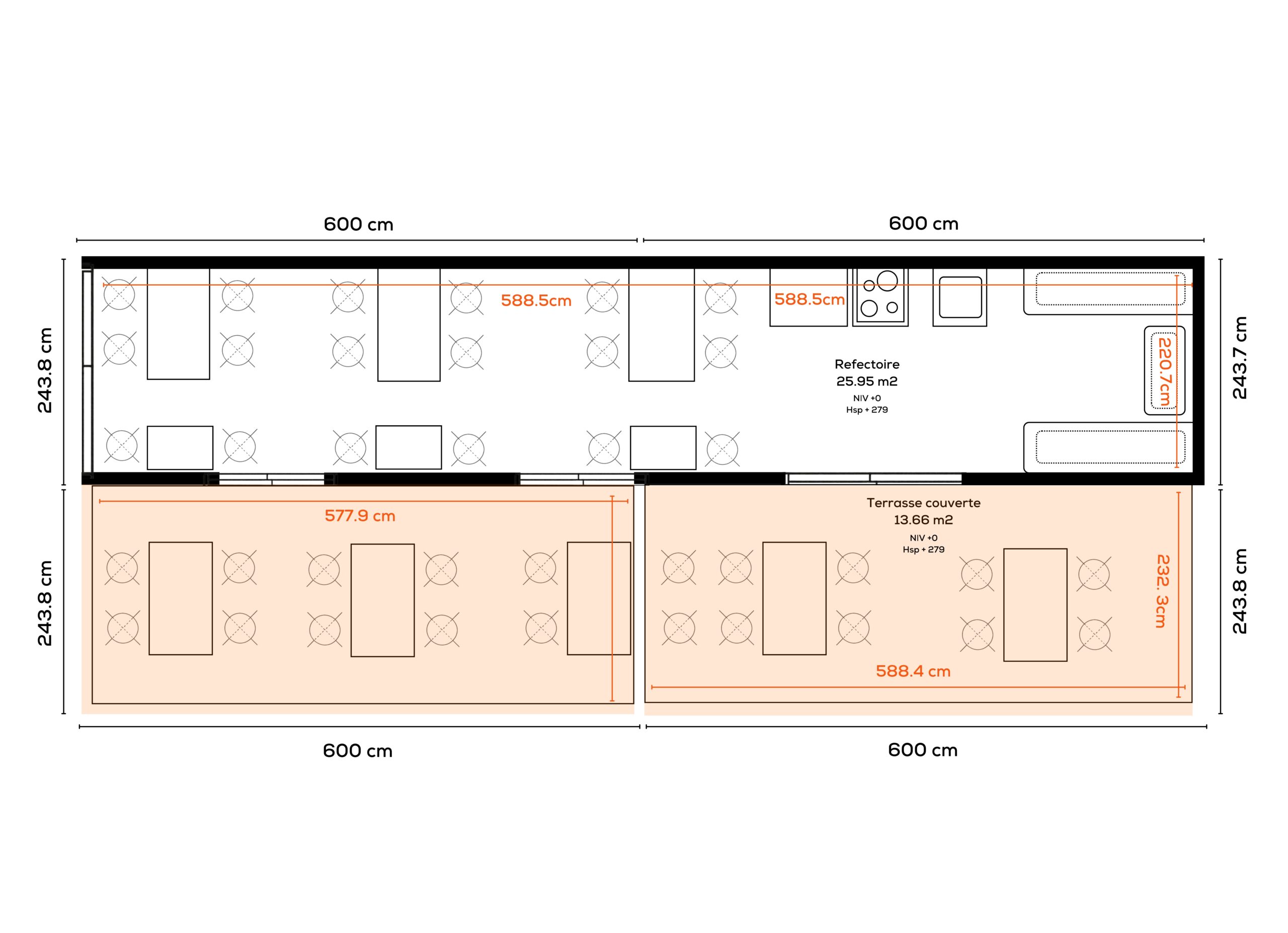
Le Grand Réfectoire Pro

Réfectoire 38 personnes – REF04

Un module conçu pour la convivialité et le partage des repas en grand groupe.

– Usage : réfectoire collectif pour chantiers de grande ampleur
– Dimensions : 4,876 x 12,000 m
– Capacité : 38 personnes
– Équipements inclus : espace repas, ventilation, installation électrique
– Options disponibles : climatisation, mobilier, cuisine intégrée

Le Réfectoire Industriel

Réfectoire 84 personnes – REF05

Un module de grande capacité pour accueillir un très grand nombre de convives.

– Usage : grande cantine ou salle de restauration temporaire
– Dimensions : 9,750 x 12,000 m
– Capacité : 84 personnes
– Équipements inclus : espace repas, ventilation, installation électrique
– Options disponibles : climatisation, mobilier complet

Comment acheter et installer votre réfectoire modulaire avec Moduloc Réunion

Un processus simple et rapide

Page module sur mesure etape besoin

01.

Choisir

Choisissez le modèle de réfectoire modulaire adapté à vos besoins.

Page module sur mesure etape devis

02.

Étude & devis

Demandez un devis en ligne ou contactez notre équipe pour votre module réfectoire.

Page module sur mesure etape commande

03.

Valider

Nos experts confirment les options et la configuration de votre modulaire.

Page module sur mesure etape livraison

04.

Livraison rapide

Votre modulaire est préparé et livré dans les meilleurs délais, partout à La Réunion.

Site moduloc section module sur mesure

Besoin d’un réfectoire modulaire à La Réunion ?

Demandez un devis pour votre espace repas dès aujourd’hui.

Financement

Découvrez ci-dessous les solutions de financement et d’optimisation fiscale adaptées à votre situation.

Financement Particuliers

🚀 Donnez vie à votre projet sans attendre !
Grâce à nos partenaires de crédit, financez un module jusqu’à 20 m² avec des conditions souples.

Vos avantages :
Simulation gratuite
• Réponse rapide
• Accompagnement pour le montage de dossier

Documents à préparer :
• Carte d’identité (ou passeport)
• Justificatif de domicile (eau, élec., impôt, etc.)
• RIB
• Bulletin de salaire ou avis d’imposition

Alternative sans financement :
• Paiement par virement, chèque ou CB
• Conditions adaptées à votre projet

👉 Vérifiez votre éligibilité dès maintenant !

✅ Réduisez vos impôts jusqu’à 30 % sur l’achat de votre modulaire grâce au dispositif SNC (Société en Nom Collectif).

Ce que vous gagnez :
• Jusqu’à 25–30 % de réduction moyenne sur votre facture
Exonération fiscale sur l’achat de modules
Accompagnement personnalisé par un cabinet spécialisé

Comment ça marche ?
Nous vous mettons en relation avec notre cabinet de défiscalisation partenaire qui :
• Gère 100 % des démarches administratives
• Optimise fiscalement votre investissement

Modalités de paiement :
• 50 % à la commande, 50 % à la livraison
• Paiement par virement, chèque ou carte bancaire
• Conditions spéciales selon projet

👉 Vérifiez votre éligibilité dès maintenant !